Wednesday, 12 June 2013

HOUSE PLANS

So while we are waiting...(insert elevator music here) ...
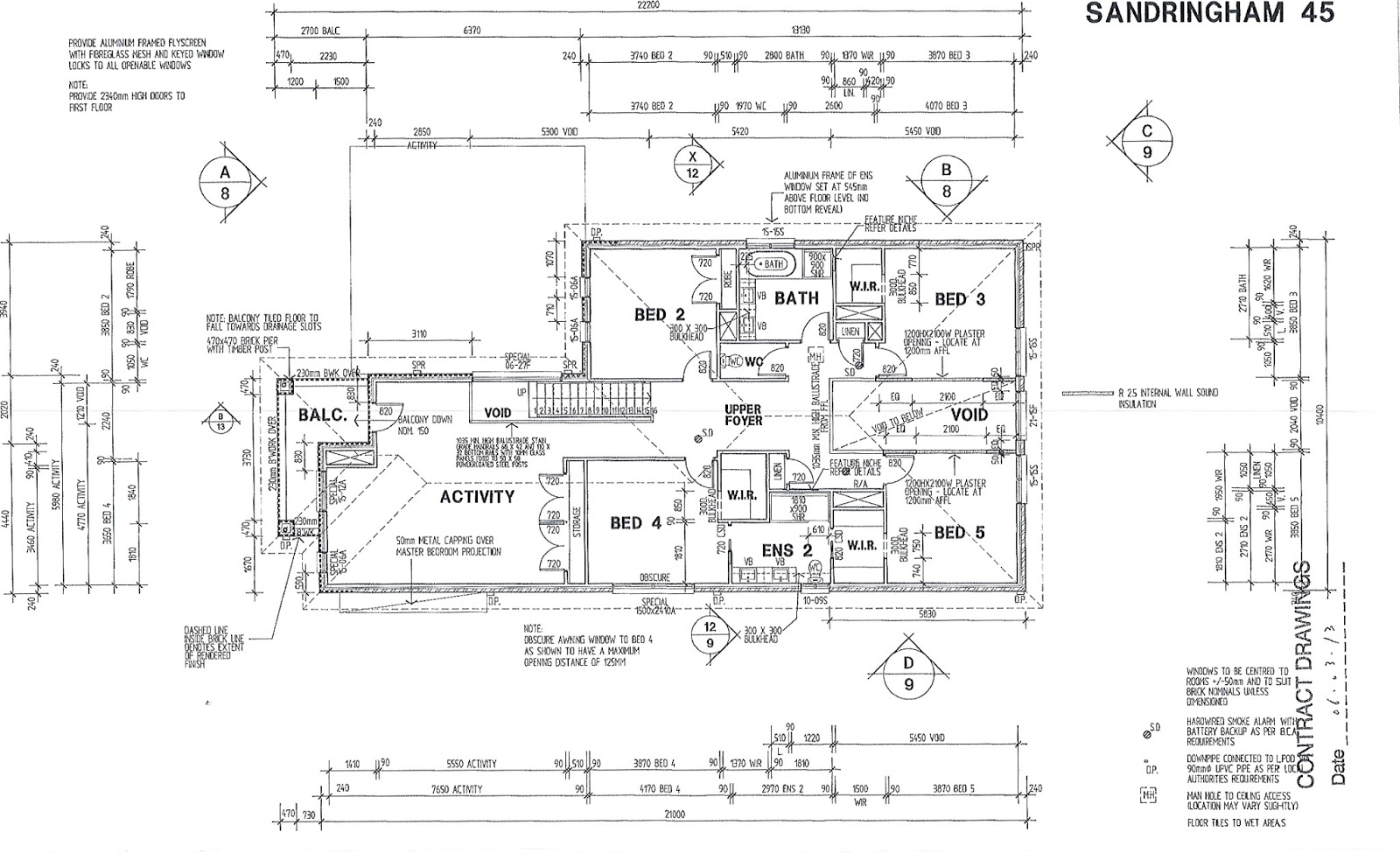
these are our plans ... we wanted the house to be just the same as was displayed (not the standard plans), this meant that we had to upgrade just about everything in it, size of windows/doors, ceiling heights etc...   We've chosen the Sterling facade and we are rendering the whole front and the pillars at the back to the alfresco (the rest is all bricked). We will be installing a fireplace in the family room post handover but PD is building the brick fire box so it's ready to go. We added the extra dining room which allowed us to spread out across the kitchen area by extending the island bench (to 4.6 metres) Just for the record it is not PD's normal practice to custom design...,it took alot of going back and forth etc but in the end we got mostly what we asked for, so thank you PD.

IN THE BEGINING...

Where to start?
We will spare you the long story leading up to how/why? We are here now and there's no going back!  It's an exciting time embarking on finally building our new home.  We are doing a knock down & rebuild in the Eastern suburbs of Melbourne.  Yes, we are Zone 4.

After much research and spending numerous weekends dragging our poor kids around display homes all over Melbourne (Ipad's underarm) we finally decided on Porter Davis as our builder. It mostly came down to design choice so the Sandringham 45 with a sterling rendered facade was the house that best suited us and ticked all of our boxes. Our favourite part is the void of the family/kitchen area and the views it affords to the backyard. 

We did however, make some modifications such as 2 Alfresco's: one which is just that, an alfresco and the other enclosed as a dining room adjacent to the kitchen/meals.  We felt that the space in the standard plan was not enough for providing a dining room big enough for our large busy family of 6 plus friends.  We have also extended the garage by 1 metre to the boundary; dad's man cave !  This triggered off the need for a dispensation application etc, which has since been approved. These extensions account for the 'and some' making it more like a Sandringham 51 approx. oh... and we also tinkered with the master en-suite (no bath, a 2100 x 1200 shower instead). We chose the shared ensuite option upstairs between beds 4 & 5 and we extended the kitchen island bench, just a little bit.

The purpose of this blog is so that all of our friends and family who have shown so much interest in our building experience can follow us on our journey through the process and to anyone else that may be interested in building a new house, perhaps they can draw something useful as we have in following others doing the same. Thanks go to all who have been brave enough to blog as it has given us the courage to also move forward in the new home experience.  

So far to date....

As I said this is a knock down rebuild and PD take over after the demolition is  complete. OK so now we needed a demolition approval from council (which took about 10 days).  Disconnection and removal of electricity and gas meters (around 4-5 weeks) oh... and an electrical pit $$. Then we independently sourced four different quotes with various demolition companies and decided on Victoria Wide Demolition (they competed for our business) and I have to say they did a fantastic job!  In 3 days the house was completely gone and land levelled. In the meantime, application for dispensation was submitted by PD and approval granted after about 4 weeks, we re-did some fencing and now the land is all ready to go.

11th December 2012 1st tender appointment;

20th December 2012: 1st site/soil survey done;

21st January 2013: colour selections;

13th February 2013: Tiles selections appointment;

6th March 2013; Contract signing.

Pause... and take breath... 

13th May 2013 demolition complete site cleared;

21st May 2013 dispensation application approved;

29th May 2013 our BC has taken leave (for 6wks) and another person has taken over our file to help get us across the line to construction;

Unfortunately, we still have a lot of items outstanding for drawing corrections etc and in the past month we have been waiting for PD to complete our post contract variation and request the construction drawings.... we don't have a site start date or site supervisor yet? ..........Sigh, we will get there.






We are looking forward to posting good news about the site start, so stay tuned...